寒河江市元町3丁目 売地
新生活を失敗せず、スタートさせたいならこちらの「寒河江市元町3丁目 売地」はいかがでしょうか!環境の良いエリアにある売地です!価格1,213万円の土地です!土地面積は235.84㎡(公簿)で一押しです!当社には不動産のプロフェッショナルが揃っております!お客様のマイホームの夢を叶えるお手伝いは、当社にお任せください!未公開情報もご用意し、お問い合わせをお待ちしております(^o^)
ローンシミュレーションこの物件を購入した場合の、月々の支払い価格の一例です。借り入れを保証するものではございません。
- 返済期間
-
- 金利
-
- ボーナス時の増額(1回分)
-
- 借入金額:
-
- 頭金:
-

- 毎月の返済額:
(※元利均等方式 金利5.00%まで ※返済年数5~50年まで入力できます)
(※ボーナスは年2回で計算しています。1000万円まで入力できます)
(※物件購入時、その他諸費用が発生する場合がございます)
担当者のコメント 緑川峻平

- 1,213万円という価格を実現していますので、非常におすすめです。工事自体も進めやすく、工事時間も短くなりやすい平坦地です。広さの心配がいらない土地面積235.84㎡(公簿)。第二種中高層住居専用地域は3階建て以上の集合住宅が立ち並ぶ住宅市街地の良好な居住環境を保護するために指定された地域です。お客様の不動産探しを、豊富なノウハウを持ったスタッフがお手伝いいたします。寒河江市エリアの情報ならお任せください。お薦めの左沢線寒河江周辺の情報もございます。
ポイント・特徴
物件概要
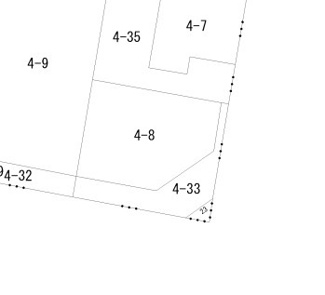
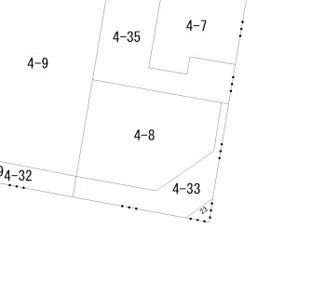
【売地】 物件番号:94605442 情報更新日:2025年11月10日 次回更新予定日:2025年11月24日| 所在地 | 山形県寒河江市元町3丁目4-8 | ||
|---|---|---|---|
| 交通 | |||
| 価格 | 1,000万円 | ||
| 土地の敷金/保証金 | -/- | 借地料/借地期間 | -/- |
| 土地面積(坪数) | 235.84㎡(71.34坪) | 坪単価 | 14.02万円 |
| 私道負担面積/セットバック | -/無 | 高圧線下面積 | - |
| 傾斜地部分面積 | - | 路地状敷地 | - |
| 土地権利 | 所有権 | 接道状況 | 角地(南 公道)(東 公道) |
| 都市計画 | 非線引区域 | 用途地域 | 第二種中高層住居専用 |
| 建築条件 | - | 地目/地勢 | 宅地/平坦 |
| 建ぺい率 | 60% | 容積率 | 200% |
| 総区画数 | - | 販売区画数 | - |
| 国土法届出要否 | 不要 | その他の法令上の制限 | 景観法 |
| 取引態様 | 仲介 | 現況 | 更地 |
| 引渡時期 | 相談 | 引渡条件 | - |
| 最適用途 | 住宅用地 | ||
| 物件番号 | 94605442 | 取引条件の有効期限 | 2025年11月24日 |
| 設備条件 |
|
||
| 備考 | 新生活を失敗せず、スタートさせたいならこちらの「寒河江市元町3丁目 売地」はいかがでしょうか!環境の良いエリアにある売地です!価格1,213万円の土地です!土地面積は235.84㎡(公簿)で一押しです!当社には不動産のプロフェッショナルが揃っております!お客様のマイホームの夢を叶えるお手伝いは、当社にお任せください!未公開情報もご用意し、お問い合わせをお待ちしております(^o^) | ||
| 取扱会社 |
|
||
※地図上に表示される物件の位置は付近住所に所在することを表すものであり、実際の物件所在地とは異なる場合がございます。






















